◎ 神戸市中央区山本通4丁目の新築一戸建て C号地 4,780万円
| 種別 | 新築一戸建て | 価格 | 4,780万円 |
|---|---|---|---|
| 所在地 | 神戸市中央区山本通4丁目15 | ||
| 敷地面積 | 96.17㎡ | 建物面積 | 128.27㎡ |
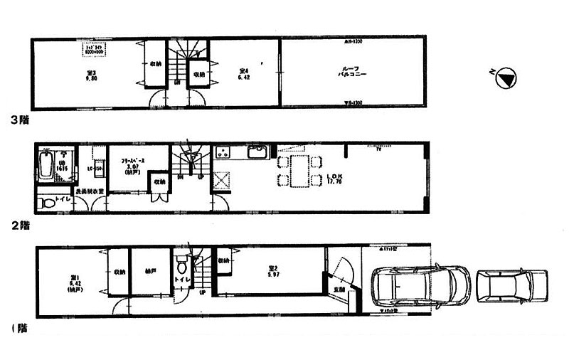
| 建物構造 | 木造3階建て | 間取り | 4SLDK |
| 築年数 | 平成24年7月築 | 駐車場 | あり(2台分) |
| 沿線 | 地下鉄西神山手線 | 最寄駅名 | 県庁前駅 |
| 徒歩(分) | 9分 | 接道方向 | 南側公道約4m |
| 小学校区 | こうべ小学校 | 中学校区 | 神戸生田中学校 |
| 土地権利 | 所有権 | 地目 | 宅地 |
| 用途地域 | 第2種住居地域 | 都市計画 | 市街化区域 |
| 建ぺい率 | 60% | 容積率 | 200% |
| 現況 | 完成済み | 引渡し | 即時 |
| 取引態様 | 仲介 | 物件番号 | 11207263101 |
神戸市中央区山本通4丁目の新築一戸建てです。全4区画の分譲で、本物件はC号地です。
山本通は兵庫県庁にも近く、神戸市中央区の中でも屈指の高級住宅街です。つつじの名所として知られる、登録記念物の日本庭園、相楽園も近くにあり、静寂の中にも厳かな雰囲気を醸し出している地域です。
最寄駅は、地下鉄西神山手線の県庁前駅で徒歩9分、そして阪急やJR・阪神の三宮駅へも徒歩圏ですので、ご主人様の通勤やお子様の通学にも、大変便利なロケーションです。
この山本通の新築一戸建ては南向きですので、不動産としても価値も高く、少し細長い土地にはなりますが、敷地も約29坪ありますので、ゆとりがあります。
車庫スペースも2台分ありますので、旦那様と奥様のそれぞれのお車を駐車して頂く事もできますし、お子様の自転車なども数台おけると思います。間取りも1階に2部屋、3階にも2部屋、2階部分にはフリースペースもあり、4LDK+納戸なので、ゆったりと生活をして頂けます。床暖房やマイクロミストサウナなどの最新設備も装備。
そして圧巻はルーフバルコニーです。約19㎡(約11.7帖)もの広さがあり、南側の眺望も抜群ですし、夏場はここでバーベキューや、花火を見ながら夕涼みにビールをお飲み頂くなど、ご家族皆様で楽しんで頂けると思います。















































