◎ 神戸市灘区篠原台の新築一戸建て 2,280万円 
| 種別 | 新築一戸建て | 価格 | 2,280万円 |
|---|---|---|---|
| 所在地 | 神戸市灘区篠原台 | ||
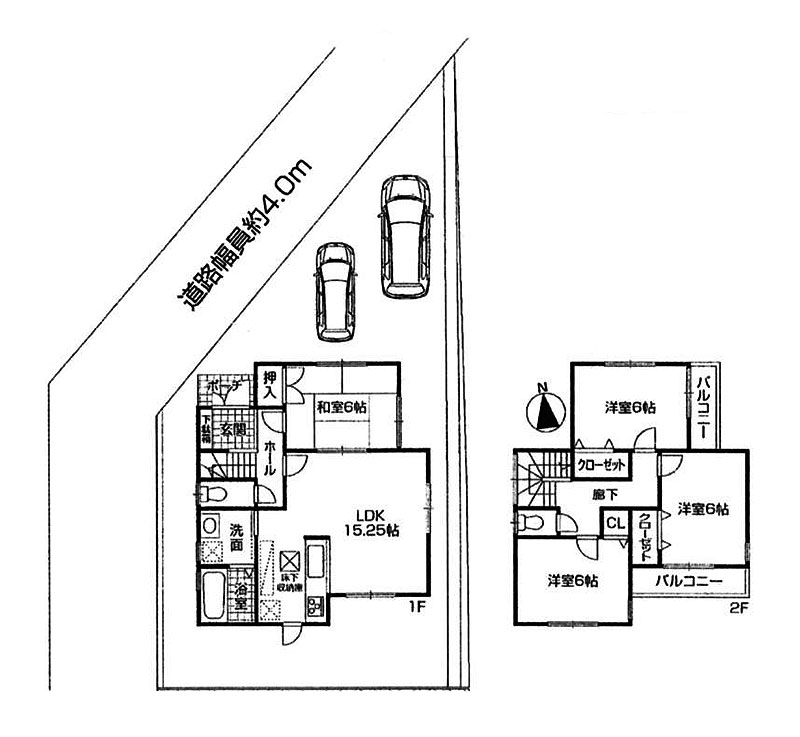
| 敷地面積 | 142.82㎡(セットバック分0.58㎡含む) | 建物面積 | 92.74㎡ |
| 建物構造 | 木造2階建て | 間取り | 4LDK |
| 築年数 | 平成24年3月 | 駐車場 | あり(1台分) |
| 沿線 | 阪急神戸線 | 最寄駅名 | 六甲駅 |
| バス停へ徒歩 | 7分 | 接道方向 | 西側4.45m、北西側4.0m |
| 小学校区 | 鶴甲小学校 | 中学校区 | 長峰中学校 |
| 土地権利 | 所有権 | 地目 | 宅地 |
| 用途地域 | 第1種低層住居専用地域 | 都市計画 | 市街化区域 |
| 建ぺい率 | 50% | 容積率 | 100% |
| 現況 | 完成済み | 引渡し | 即時 |
| 取引態様 | 仲介 | 物件番号 | 11203262101 |
7/26(木) 2,480万円 → 2,280万円 価格変更しました。
神戸市灘区篠原台にある新築一戸建てです。篠原台エリアは灘区の山の手にあり、多くの緑に囲まれた、とても静かな住環境です。
2480万円という価格からも分かるように、交通の便は少し良くないです。車がないと、なかなかお買物などが大変かも知れません。
と言うのも、この辺りは坂が非常にきつく、阪急の六甲駅に行くには、徒歩で行けない事はありませんが、この不動産から徒歩7分のところに阪急バスの「炭山橋」バス停がありますので、(バス停までも坂が続きます。)約13分間、バスの乗って頂き、駅まで行くのが現実的かもしれません。
お車がある場合は、奥様に駅まで送って頂き、通勤をなさるという方法もあります。
お家に関しては、ペアガラスや浴室暖房乾燥機など、とても充実した設備を導入しております。車庫も2台分ありますので、ご主人様用と奥様用の車があっても大丈夫。
本当に空気がおいしいので、お子様を育てるにも良い環境です。鶴甲小学校へは、坂を下って上って、階段を上がって下っての道のりですので、お子様は健脚になり、そして体力も付きますので、健康な子供に育っていくと思います。
坂のことばかり強調してしまいましたが、価格と照らし合わせると、非常にお買い得な不動産だと思います。是非、現地をご覧ください!
















































